Nuovo progetto bifamiliare Ellen, in recente lottizzazione, inserito in un contesto residenziale di pregio, a pochi passi dal centro paese di Roveleto di Cadeo (PC).
Il progetto sarà realizzato con tecnologia prefabbricata in legno Wolf Haus, garantendo il massimo confort abitativo e prestazioni energetiche elevate, fino al raggiungimento della classe energetica A4, con abbattimento dei costi di gestione in linea con la Direttiva Europea “Case Green”.
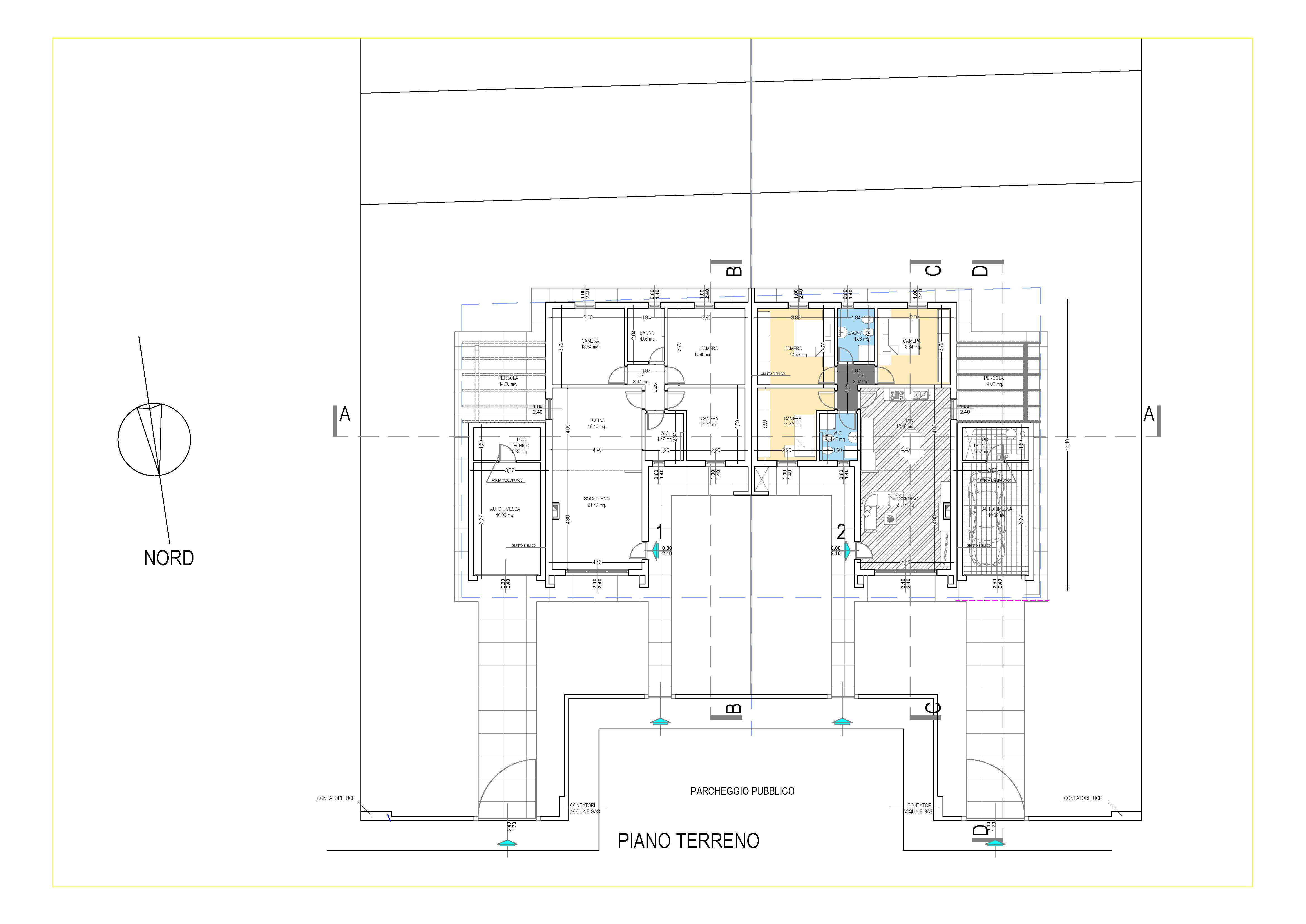
Le unità abitative, completamente indipendenti, si svilupperanno su un unico livello (piano terra), così composto:
Zona giorno: “open space” con ampia vetrata lato ingresso e affaccio su pergolato esclusivo laterale.
Zona notte: tre camere da letto e doppi servizi.
Completano il tutto, un’ampia autorimessa e relativa cantina con locale tecnico.
L’intervento sarà collocato in una lottizzazione con abitazioni uni/bifamiliari recenti, in zona molto tranquilla, a contatto con la natura circostante.
Roveleto di Cadeo è un Comune situato lungo la Via Emilia, fra Fiorenzuola d’Arda (PC) e Piacenza con servizi principali (Autostrada, stazione ferroviaria, Pronto soccorso, scuole e ipermercati, ecc.) a non più di 5 minuti d’auto.
Per informazioni contattare:
Consulente Wolf Haus: Lorenza Rossi
333 9952299
buro@wolfsystem.it