Lottizzazione ex novo, in via Bassina a Montecchio Emilia (RE).
Prevista la realizzazione di due unità bifamiliari, immerse nel verde.
Le villette, saranno realizzate con tecnologia prefabbricata in legno WOLF HAUS, garantendo il massimo comfort abitativo e le migliori prestazioni energetiche e il raggiungimento della classe energetica A4, che porterà ad un sostanziale abbattimento dei costi gestione.
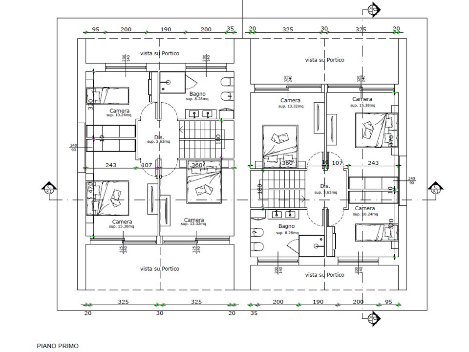
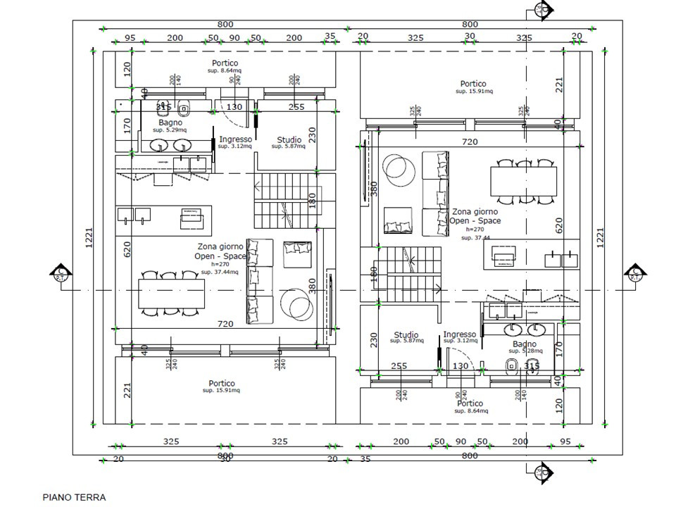
Le unità abitative che compongono le bifamiliari, sono disposte su due piani così suddivisi:
Piano Terra- zona living open space con ampie vetrate che affacciano su due portici, direttamente collegati con il giardino di proprietà, uno studio e un bagno
Piano Primo - tre camere e ampio bagno.
A completamento è previsto un piano interrato con garage e bassi servizi.
Il progetto è integrato in un contesto residenziale di pregio, in zona tranquilla, ma a pochi Km di distanza da Casello Austradale A1,
e a due minuti di auto dal centro di Montecchio Emilia e dai principali servizi.
Per informazioni contattare:
Consulente Wolf Haus: Lorenza Rossi
333 9952299
buro@wolfsystem.it